Yaz Çocuk Kursları
Kültür Müdürlüğü  28.10.2022  00:00

Yaz Çocuk Kursları

Cumhuriyet Parkı Yapımı
Park Bahçeler Müdürlüğü  23.10.2022  06:06

Cumhuriyet Parkı Yapımı

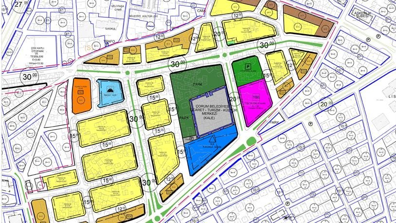
Hürriyet Mahallesi İmar Revizyon Çalışması-23-25-28 Adalar
İmar Müdürlüğü  23.10.2022  16:05

Hürriyet Mahallesi İmar Revizyon Çalışması-23-25-28 Adalar

Eti Kapalı Pazar Temizliği
Temizlik İşleri Müdürlüğü  26.10.2022  00:00

Eti Kapalı Pazar Temizliği